63rd Infantry Division Insignia
Views of  Germany's West Wall (The
Siegfried Line)-Page 3
UR HERE: Siegfried Line- Page 1>Siegfried Line Page 2> Siegfried Line Page 3>
The "Westwall" Fortification (continued)
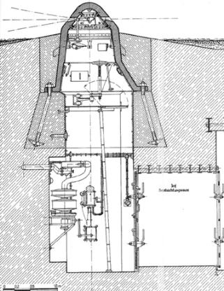
Type B Fortification
Infantry Observation Cupola
Turret with 6 embrasures in B Fort
B-Fort Flamethrower
Go to View of Germany's WestWall Page 4
Contents
Index
Homepage
The Association
Division History
253rd Regimental Page
254th Regimental Page
255th Regimental Page
Division Artillery
Support Battalions
Special Troops
Buddy Search
Memorabilia
Mail Call
Reunions
Division Memorials
Bulletin Board
Related Web Pages
Web Rings
Credits Page
Send  me
an                e-mail
63rd Infantry Division Insignia